Se connecter
0
  • Acheter De l'ancien
Dans un rayon de
Budget
Mini
Maxi

    Faites estimer votre bien par un professionnel

    Estimer votre bien

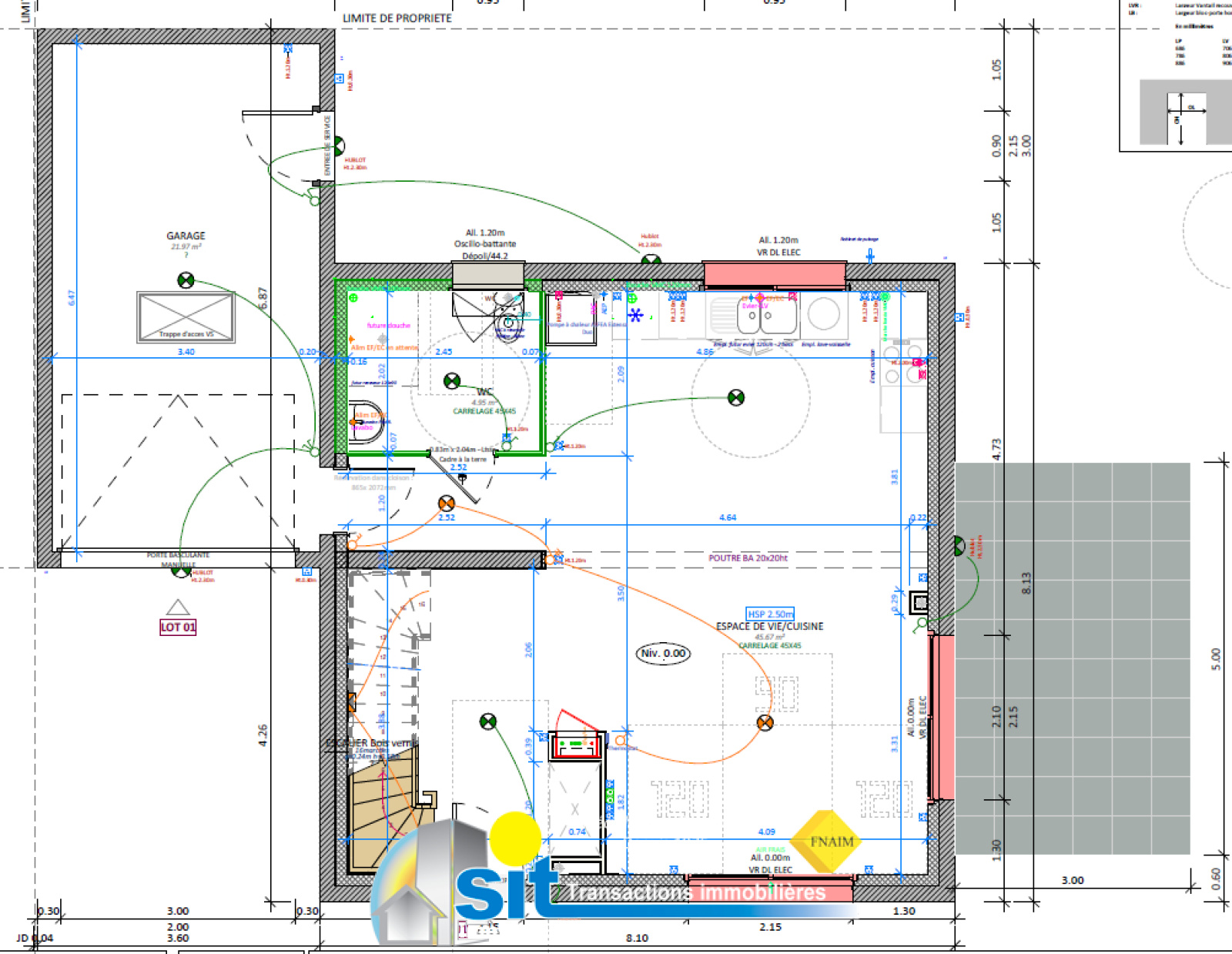
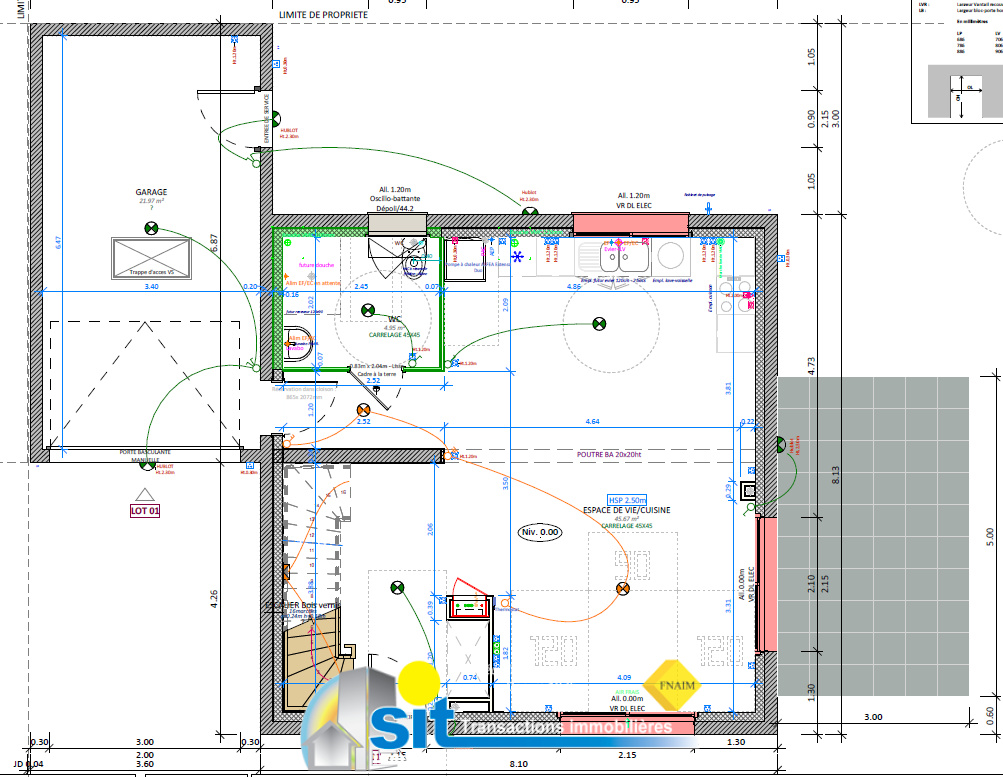
    VENTE - Maison 100m² - Assieu

    Vienne (38200)
    Réf : 2895 Bis

    AM2895- 20 Min Sud VIENNE (38200) / Secteur calme et prisé d'ASSIEU (38150)

    SIT IMMOBILIER vous propose à la VENTE cette VILLA individuelle, normes RE2020, en FRAIS DE NOTAIRE REDUITS d'environ 100m² HABITABLES, offrant une pièce à vivre lumineuse de 45m² avec cuisine équipée ouverte sur séjour, 3 CHAMBRES avec placards, salle de bains aménagée (baignoire + douche), 2 wc (poss. 2ème salle d'eau) et garage attenant.

    Prestations de qualités : Chauffage de type pompe à chaleur AIR/EAU avec plancher chauffant au rez-de-chaussée, mesuiserie RAL 7035, séjour avec 2 baies vitrées,, WC suspendus, terrain clos, engazonné et arboré, avec coin terrasse...

    Assurances (décennales, dommage ouvrage).

    Le tout sur un terrain clos, engazonné et arboré d'environ 1209m² (non constructible) offrant une très jolie vue sur les champs et le pilat.

    Au fond du impasse au calme, village avec ses commerces et son école accessible à pied. 5 Min à voiture du village de Vernioz avec ses commerces.

    15 Min gare SNCF du Péage-de-Roussillon / 10 Min du futur échangeur VIENNE/REVENTIN-VAUGRIS

    DPE : A

    N'hésitez pas à contacter votre agence SIT IMMOBILIER située au 41, Cours de Verdun 38200 VIENNE au 04 74 78 33 33 pour tout renseignement complémentaire

    PRIX AFFICHE HONORAIRES AGENCE INCLUS A CHARGE VENDEUR

    « Les informations sur les risques auxquels ce bien est exposé sont disponibles sur le site Géorisques : www.georisques.gouv.fr »

    découvrir le bien
    Prix du bien 315 000 €
    Pièce(s) 5
    Chambre(s) 3

    Caractéristiques du bien

    Caractéristiques Valeurs
    Code postal 38200
    Surface habitable (m²) 100 m²
    surface terrain 1 209 m²
    Nombre de chambre(s) 3
    Nombre de pièces 5
    Nombre de niveaux 2
    Nb de salle de bains 1
    Cuisine Américaine
    Mode de chauffage Pompe à chaleur
    Type de chauffage TRAD_TYPE_CHAUFF_AIR_EAU
    Format de chauffage Individuel
    Nombre de garage 1
    Exposition Sud-Est
    Année de construction 2024

    Infos financières

    Caractéristiques Valeurs
    Prix de vente honoraires TTC inclus 315 000 €

    Bilans énergétiques

    DPE GES
    Ce bien vous intéresse ?
    Fieldset par défaut
    Fieldset par défaut
    Validation

    * Champs obligatoires

    Contacter l'agence
    Validation
    Les informations recueillies sur ce formulaire sont enregistrées dans un fichier informatisé par La Boite Immo agissant comme Sous-traitant du traitement pour la gestion de la clientèle/prospects de l'Agence / du Réseau qui reste Responsable du Traitement de vos Données personnelles. La base légale du traitement repose sur l'intérêt légitime de l'Agence / du Réseau. Elles sont conservées jusqu'à demande de suppression et sont destinées à l'Agence / au Réseau. Conformément à la loi « informatique et libertés », vous disposez des droits d’accès, de rectification, d’effacement, d’opposition, de limitation et de portabilité de vos données. Vous pouvez retirer votre consentement à tout moment en contactant directement l’Agence / Le Réseau. Consultez le site https://cnil.fr/fr pour plus d’informations sur vos droits. Si vous estimez, après avoir contacté l'Agence / le Réseau, que vos droits « Informatique et Libertés » ne sont pas respectés, vous pouvez adresser une réclamation à la CNIL. Nous vous informons de l’existence de la liste d'opposition au démarchage téléphonique « Bloctel », sur laquelle vous pouvez vous inscrire ici : https://www.bloctel.gouv.fr Dans le cadre de la protection des Données personnelles, nous vous invitons à ne pas inscrire de Données sensibles dans le champ de saisie libre.
    Ce site est protégé par reCAPTCHA, les Politiques de Confidentialité et les Conditions d'Utilisation de Google s'appliquent.

    Localisationdu bien

    • Commerces et santé
    • Loisirs
    • Ecoles
    • Transports
    • Pratique